Oakhurst

10 Cremona Place

Comfortable & Spacious Family Living!

3R Property Group proudly welcomes you to 10 Cremona Place, Oakhurst, a beautifully positioned residence set within a quiet and tightly held cul-de-sac in one of Western Sydney's most desirable family enclaves. Showcasing a refined sense of comfort and lifestyle, this impressive home enjoys close proximity to quality schools, local parks, shopping centres, and public transport, while offering seamless access to the M7 and Great Western Highway. Just minutes away, the Marsden Park Business Hub provides premium retail conveniences including Costco, IKEA, Bunnings and more.

Inclusions:
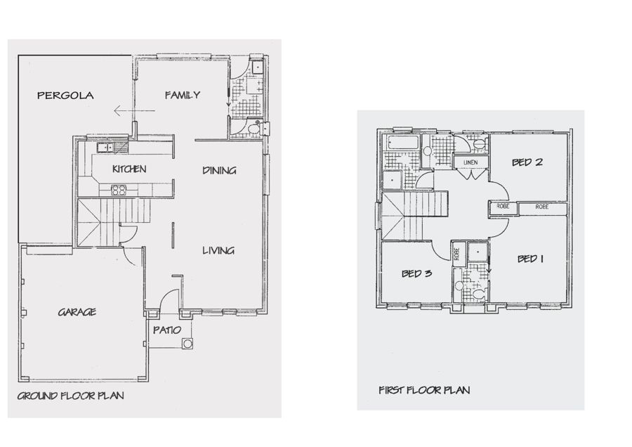
- Split air-conditioning downstairs, duct air-conditioning upstairs
- Tiled formal lounge & dining with gas connection & split aircon
- Informal tiled family area with access to pergola & backyard
- Modern kitchen with gas cooktop, tiled splash back, dishwasher, steel appliances & ample cupboard space
- Three spacious bedrooms with carpet, ceiling fans & built ins to all
- Bathroom with shower & tub - Separate vanity & toilet - Master ensuite with shower & toilet
- Separate internal laundry with third toilet & access to backyard
- Huge pergola, perfect for outdoor activities or extra car parking
- Remote controlled double garage with through access to pergola
- Good sized yards and easy to maintain

Highlighted features: split & duct air conditioning, gas connection, 2x living areas, 3x toilets, 2x linen cupboards for added storage, dishwasher, huge pergola, easy to maintain yards, prime Oakhurst location

Key information:
- Lease period: 12 months
- Cooking: Gas
- Heating/Cooling: Split & Duct air-conditioning

Many more features to list - inspection a must!

PLEASE NOTE: OPEN HOMES ARE SUBJECT TO CHANGE, PLEASE CONFIRM PRIOR TO OPEN HOME TO ENSURE IT IS STILL ON.

Disclaimer: We have been furnished with the above information, however, 3R Property Group gives no guarantees, undertakings or warnings concerning the accuracy, completeness or up-to-date nature of the information provided. All interested parties are responsible for their own independent inquiries in order to determine whether or not this information is in fact accurate.

Leased for $720

3
2
4

Property Features

  • Property ID
    21589095
  • Built In Robes
  • Total car spaces
    2
  • Dishwasher
  • Ducted Cooling
  • Ducted Heating
  • Fully Fenced
  • Remote Garage
  • Secure Parking
  • Split System

Contact

Share